Обяви За нас Контакти
Продава 3-СТАЕН
област Бургас, гр. Созопол
167 000 €
326 623.61 лв.

(1 546 €, 3 023.71 лв./m2)
Цената е без ДДС
История на цената
Публикувана в 18:01 на 12 февруари, 2026 год.
Обявата е посетена 37 пъти.
Площ:
108 m2
Етаж:
1-ви от 3
Газ:
НЕ
ТEЦ:
НЕ
Строителство:
Тухла, Въведен в експлоатация

Описание на имота:


Агенция SUPRIMMO: www.suprimmo.bg
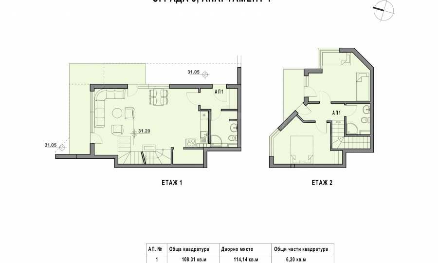
Представяме за продажба тристаен апартамент с обща площ от 108,31 кв.м, разположен на 1-ви и 2-ри етаж в Сграда 3, в бутиков комплекс с басейн в Созопол.

Има Акт 16.

Имотът разполага със собствено дворно пространство с площ от 114,14 кв.м.

Жилището се предлага завършено 'до ключ', готово за обзавеждане:
подове с гранитогрес/ламинат;
монтирана входна блиндирана врата;
висококачествени интериорни врати;
санитарни помещения изцяло със санитария ROCA.

Атрактивно местоположение

Комплексът се състои от три кокетни нискоетажни сгради, разположени П-образно върху терен от 4226 кв.м, с красив басейн между тях.

Местоположението е стратегическо и удачно както за живеене, незабравими летни почивки, така и за инвестиция. Спокойната локация във вилната зона на Созопол, в местност Буджака, дава възможност както за автономното обитаване и отдих, така и привлича множество туристи, търсещи активната почивка във ваканционен летен комплекс в район с красиви плажове - Каваците, Райски залив и Харманите.

Строителство

Качественото строителство с привлекателен дизайн допринася за безпроблемната експлоатация на жилищата предвид морския климат. Конструкцията на сградата е монолитна, стоманобетонна, скелетна, с тухлени неносещи стени, с външна топлоизолация с дебелина 5 см. Светлата фасада е с покритие с мазилка CAPAROL, а дограмата е висок клас, с отлична топло- и шумоизолация, немска PVC - Schüco.

Очакваме Вашето запитване

Ако желаете да организирате оглед на имот, който Ви интересува, или да посетите някой от нашите офиси, моля свържете се с нас. За да уговорите ден и час за среща или оглед, можете да се обадите на посочения в обявата телефон или да изпратите запитване чрез електронната поща. Нашият консултант ще Ви съдейства с всички ...

Цената на имота е 167 000 евро / 326 623.61 лв. без ДДС или 200 400 евро / 391 948.33 лв. с ДДС. Данъчен кредит може да се ползва при определени условия.

За повече информация свържете се с нас и цитирайте референтния номер на имота. Моля, кажете, че сте видeли обявата в този сайт.
Референтен номер: LXH-137916
Тел: 0884 075 680, 056 707 932
Отговорен брокер:инж. Валентина Ангелова
Особености
Тухла
За контакт:
0884075680
Брокер:
инж. Валентина Ангелова
0884 075 680
Още оферти от брокера: Продава | Дава под наем | Купува | Наема
Агенция:
СУПРИММО - БУРГАС
056 706 104; 0882 638 410
СУПРИММО - БУРГАС logo
Медал за прослужено време
В imot.bg от 2018 г.
superimotiburgas.imot.bg
Адрес:
област Бургас, гр. Бургас, гр. Бургас, Tърговски комплекс 'Кирил и Методий', ул. 'Генерал Скобелев' 10
ИЗПРАТИ ЗАПИТВАНЕ
ИЗПРАТИ ЗАПИТВАНЕТО

Продава 3-СТАЕН
област Бургас, гр. Созопол
Обява: 1c177091206617795

167 000 €
326 623.61 лв.
История на цената
(1 546 €, 3 023.71 лв./m2)

Цената е без ДДС
ЗАПАЗИ ОБЯВАТА

Местоположение: област Бургас, гр. Созопол